,是西安市投入186亿元建设东部新城的首发之作。周边交通便捷,距地铁1号线纺织城站1500米,地铁6号线纺南站300米,绕城高速纺织城站500米,距三环500米。项目地上地下总建面35万平米,绿化率达40%,容积率3.2。 中铁·缤纷新城项目工程分两期开发,规划建设有18栋高层,总户数1956户,主力户型78-111平两居和三居室产品。一期2014年12月份已交房入住。楼盘特点,在充分保留国棉六厂原厂区的历史人文风貌基础之上,结合现代都市人居理念,打造充满缤纷活力的文化宜居生活新城。
基本信息
规划信息
配套信息
销售信息
优选顾问推荐
各个空间户型方正,后期空间利用率高;全明户型,各部分空间均有窗,可保证整体空间采光和通风,居住舒适度好;整体空间布局合理,能够保证动静分离和居室通风,方便使用;卧室厨卫等各个功能区的面积大小都比较合理,居住体验便利,整体舒适度高;公摊高于15%且低于25%,符合住宅公摊正常范围。
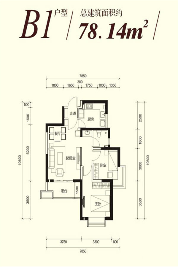
各个空间户型方正,后期空间利用率高;整个空间全明通透,采光良好,同时利于居住空间通风;卧室进卫生间需要穿过餐厅或客厅;客厅、卧室、卫生间和厨房等主要功能间的尺寸以及比例适中,有利于采光和通风,居住起来舒适、方便;公摊高于15%且低于25%,符合住宅公摊正常范围。
各个空间户型方正,方便室内家具布置;全明户型,各部分空间均有窗,可保证整体空间采光和通风,居住舒适度好;整个户型空间布局合理,做到了干湿分离、动静分离,方便后期生活;各个功能区的尺寸比例规范,布局合理,能很好地满足日常功能需求,整体空间开阔,采光充足,居住舒适度好;公摊高于15%且低于25%,符合住
整体户型方正,活动区域开阔,居住舒适度高;全明通透户型,居住舒适度较高,整个空间采光充足,利于后期居住;整体空间布局合理,能够保证动静分离和居室通风,方便使用;客厅、卧室、卫生间和厨房等主要功能间的尺寸以及比例适中,有利于采光和通风,居住起来舒适、方便;公摊高于15%且低于25%,符合住宅公摊正常范
各个空间户型方正,后期空间利用率高;全明户型,各部分空间均有窗,可保证整体空间采光和通风,居住舒适度好;卧室进卫生间需要穿过餐厅或客厅;各个功能区的尺寸比例规范,布局合理,能很好地满足日常功能需求,整体空间开阔,采光充足,居住舒适度好;公摊高于15%且低于25%,符合住宅公摊正常范围。

楼盘开盘、降价、优惠等信息,将会在第一时间短信通知您!
置业专家将在2小时内与您联系(8点-23点),请保持电话畅通。
请验证手机号验证码完成提交
置业专家将在2小时内与您联系(8点-23点),请保持电话畅通。
如当前手机号遗失,请联系0755-33526610进行人工修改
如当前手机号遗失,请联系0755-33526610进行人工修改
此楼盘如有优惠/变价通知,我们会及时通知您!
138****8965已经申请
137****8955已经申请
157****4365已经申请
183****8115已经申请
187****5968已经申请
159****8233已经申请