建筑设计由新加坡山鼎建筑有限公司主笔担纲,景观设计则重金聘请了英国艾特集团规划设计。 雁鸣墅语采用“新亚洲主义”风格,以浓厚的具有亚洲地域特色的传统文化为根基,融入现代西方文化,在功能上进行改良,将自然景观与建筑、私密性与开发性巧妙结合,尊重居住者内心感受,强调建筑与环境的和谐共生。 雁鸣墅语沿雁鸣湖而建,一期用地约83亩,容积率1.2。依循缓坡曲线及湖的弧度布局,形成前低后高层层叠落的建筑群落,使每个户型都能收览湖景和阳光。704—896㎡别墅, 307—486㎡联排,1400㎡湖居岛墅,层层退台,360°阔湖视野,双首层阳光庭院,豪华主卧套系,践写西安湖湾别墅的形态。此外,绅士商务会所、名媛养生会所、运动健身会所三个主题私家会所,总面积近万平米,如大雁展翅栖于湖畔。商务会客、SPA养生、场地高尔夫、韩式射箭,锻炼身心抑或在摇曳的高脚杯中,快意人生。 雁鸣墅语拥有物管专家,儿童托送、聚会办理、商务服务,温馨周到,细致入微。社区九重智能安防系统全方位铸造安全壁垒。室内高智能控制系统,低碳节能建筑技术应用,给家人绿色健康的品质生活。
基本信息
规划信息
配套信息
销售信息
优选顾问推荐
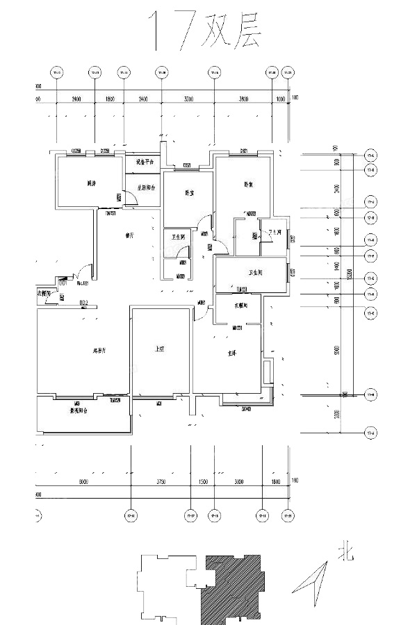
整体户型方正,活动区域开阔,居住舒适度高;户型不是南北通透,后期装修时可以考虑加装纱门改善通风;整个户型空间布局合理,做到了干湿分离、动静分离,方便后期生活;各个功能区的尺寸比例规范,布局合理,能很好地满足日常功能需求,整体空间开阔,采光充足,居住舒适度好;公摊高于15%且低于25%,符合住宅公摊正
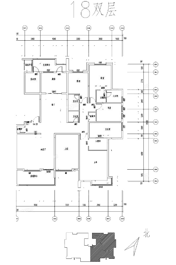
整体户型方正,活动区域开阔,居住舒适度高;户型不是南北通透,后期装修时可以考虑加装纱门改善通风;整体空间布局合理,能够保证动静分离和居室通风,方便使用;各个功能区的尺寸比例规范,布局合理,能很好地满足日常功能需求,整体空间开阔,采光充足,居住舒适度好;公摊高于15%且低于25%,符合住宅公摊正常范围

楼盘开盘、降价、优惠等信息,将会在第一时间短信通知您!
置业专家将在2小时内与您联系(8点-23点),请保持电话畅通。
请验证手机号验证码完成提交
置业专家将在2小时内与您联系(8点-23点),请保持电话畅通。
如当前手机号遗失,请联系0755-33526610进行人工修改
如当前手机号遗失,请联系0755-33526610进行人工修改
此楼盘如有优惠/变价通知,我们会及时通知您!
138****8965已经申请
137****8955已经申请
157****4365已经申请
183****8115已经申请
187****5968已经申请
159****8233已经申请