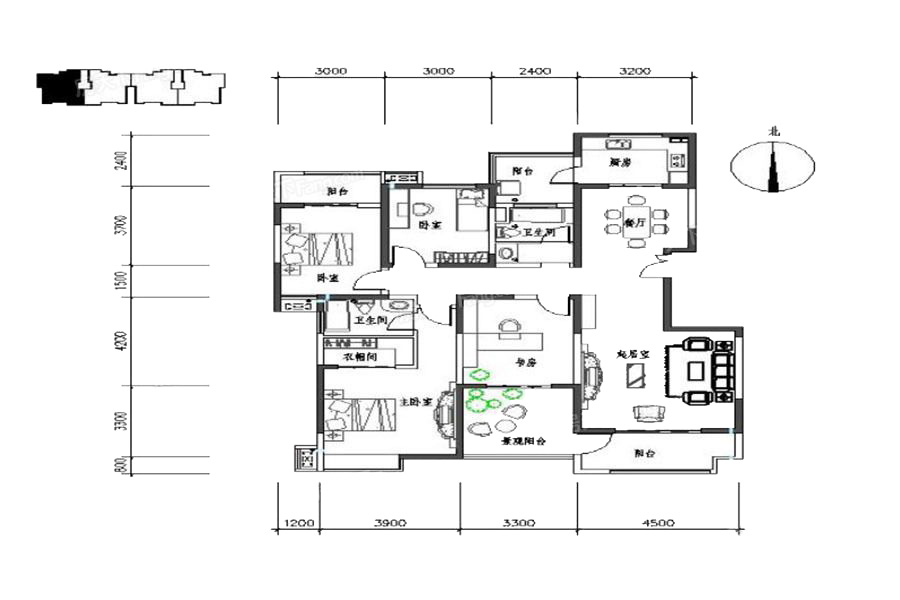
西港碧水湾,地处西安市东北郊,是西北大规模生态化社区。北望渭河,南临秦汉大道,西邻灞河,与灞河有50米宽自然绿化带相接,占据国际港务区和浐灞生态区核心,紧邻西安2011年世园会中心区、北城CBD东北区、西安市新行政中心等标志建筑。 西港碧水湾项目拟开发用地178亩,建设12栋高层,总建筑面积约26万平方米,容积率3.1左右,绿地率42%。一期开工5栋建筑面积约11万平方米,自 2010年10月份开始实施,至2013年6月底完工。 西港碧水湾项目规划两梯三户的、四户的适宜居住户型,户户朝南,日照和采光绝佳;90-140平米的二室、三室舒适户河景大宅;且飘窗、落地窗等的运用,为家庭营造更好的居住条件。
基本信息
规划信息
配套信息
销售信息
优选顾问推荐
各个空间户型方正,方便室内家具布置;整个空间全明通透,采光良好,同时利于居住空间通风;居室布局合理,通风良好,动静分离,兼顾到了卧室和卫生间的私密性;卧室厨卫等各个功能区的面积大小都比较合理,居住体验便利,整体舒适度高;

楼盘开盘、降价、优惠等信息,将会在第一时间短信通知您!
置业专家将在2小时内与您联系(8点-23点),请保持电话畅通。
请验证手机号验证码完成提交
置业专家将在2小时内与您联系(8点-23点),请保持电话畅通。
如当前手机号遗失,请联系0755-33526610进行人工修改
如当前手机号遗失,请联系0755-33526610进行人工修改
此楼盘如有优惠/变价通知,我们会及时通知您!
138****8965已经申请
137****8955已经申请
157****4365已经申请
183****8115已经申请
187****5968已经申请
159****8233已经申请