项目位于西安市高新区科技六路木塔寺公园东,由5栋高层组成,项目主要卖点为高新木塔寺公园及旁边的唐城墙遗址公园、新纪元、奥林匹克公园,未来规划中的占地500亩的21世纪公园城、高新核心商业配套、地铁六号线,高新主要交通干道,户型超高赠送率;目前项目五证齐全,在售户型101-166㎡,2015年12月31日交房,目前施工进度地上18层,项目现处于平销期
基本信息
规划信息
配套信息
销售信息
优选顾问推荐
18700元/平
18000元/平
27000元/平
7800元/平
14788元/平
20000元/平
12000元/平
12000元/平
各个空间户型方正,后期空间利用率高;客厅、主卧非南向或东向;南北不通透的户型,后期居住时常开门通风换气即可;卧室进卫生间需要穿过餐厅或客厅;各个功能区的尺寸比例规范,布局合理,能很好地满足日常功能需求,整体空间开阔,采光充足,居住舒适度好;公摊高于15%且低于25%,符合住宅公摊正常范围。
暂无
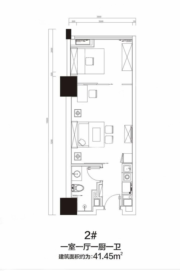
各个空间户型方正,后期空间利用率高;户型不是南北通透,后期装修时可以考虑加装纱门改善通风;卧室进卫生间需要穿过餐厅或客厅;客厅、卧室、卫生间和厨房等主要功能间的尺寸以及比例适中,有利于采光和通风,居住起来舒适、方便;公摊高于15%且低于25%,符合住宅公摊正常范围。
暂无
暂无

楼盘开盘、降价、优惠等信息,将会在第一时间短信通知您!
置业专家将在2小时内与您联系(8点-23点),请保持电话畅通。
请验证手机号验证码完成提交
置业专家将在2小时内与您联系(8点-23点),请保持电话畅通。
如当前手机号遗失,请联系0755-33526610进行人工修改
如当前手机号遗失,请联系0755-33526610进行人工修改
此楼盘如有优惠/变价通知,我们会及时通知您!
138****8965已经申请
137****8955已经申请
157****4365已经申请
183****8115已经申请
187****5968已经申请
159****8233已经申请