水岸龙庭项目占地21亩,主力户型70-80平两居和三居。 水岸龙庭项目周围有堡子村商圈、新寺商圈,百万商业。社区幼儿园、实验小学、黄河小学、铁一中。 水岸龙庭项目涵盖小高层、高层住宅及商业、教育配套。
基本信息
规划信息
配套信息
优选顾问推荐
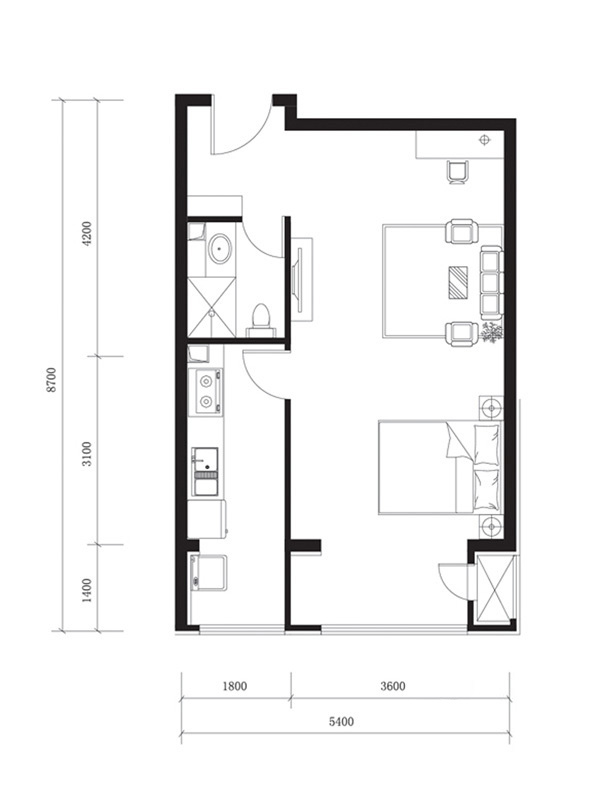
各个空间户型方正,后期空间利用率高;全明户型,各部分空间均有窗,可保证整体空间采光和通风,居住舒适度好;卧室作为休息区域,门朝向客厅或餐厅时,私密性一般;厨房门对着客厅,室内通风好,则无需顾虑油烟的困扰;卧室厨卫等各个功能区的面积大小都比较合理,居住体验便利,整体舒适度高;公摊高于25%。
各个空间户型方正,后期空间利用率高;整个空间全明通透,采光良好,同时利于居住空间通风;居室布局合理,通风良好,动静分离,兼顾到了卧室和卫生间的私密性;客厅、卧室、卫生间和厨房等主要功能间的尺寸以及比例适中,有利于采光和通风,居住起来舒适、方便;公摊高于25%。
各个空间户型方正,后期空间利用率高;全明通透户型,居住舒适度较高,整个空间采光充足,利于后期居住;卫生间门朝向主要活动区域;。各个功能区的尺寸比例规范,布局合理,能很好地满足日常功能需求,整体空间开阔,采光充足,居住舒适度好;公摊高于25%。
整体户型方正,活动区域开阔,居住舒适度高;全明户型,各部分空间均有窗,可保证整体空间采光和通风,居住舒适度好;居室布局合理,通风良好,动静分离,兼顾到了卧室和卫生间的私密性;各个功能区的尺寸比例规范,布局合理,能很好地满足日常功能需求,整体空间开阔,采光充足,居住舒适度好;公摊高于25%。

楼盘开盘、降价、优惠等信息,将会在第一时间短信通知您!
置业专家将在2小时内与您联系(8点-23点),请保持电话畅通。
请验证手机号验证码完成提交
置业专家将在2小时内与您联系(8点-23点),请保持电话畅通。
如当前手机号遗失,请联系0755-33526610进行人工修改
如当前手机号遗失,请联系0755-33526610进行人工修改
此楼盘如有优惠/变价通知,我们会及时通知您!
138****8965已经申请
137****8955已经申请
157****4365已经申请
183****8115已经申请
187****5968已经申请
159****8233已经申请