择址西安高新区CBD腹轴锦业路上,坐享地 铁6号线丈八四路站,近邻陕西大会堂旁待建公园、绿地正大缤纷城、高新第四小学、高新第一中学国际部、华为等世界5 00强企业总部,打造城市中心低密大宅,以地标人居之姿态,重塑西安高端人居典范。
基本信息
规划信息
配套信息
销售信息
优选顾问推荐
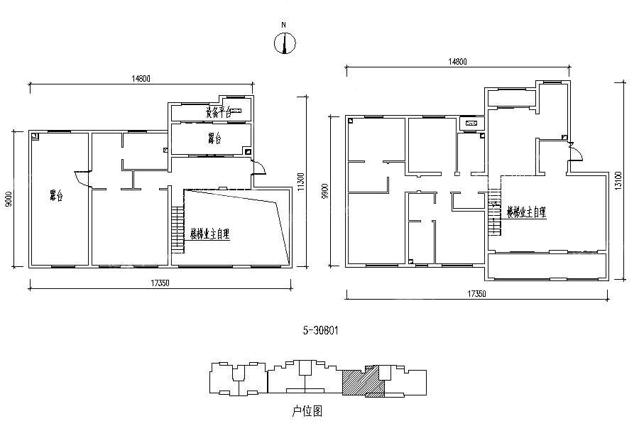
整体户型方正,活动区域开阔,居住舒适度高;户型不是南北通透,整体空间无穿堂风;整体空间布局合理,能够保证动静分离和居室通风,方便使用;各个功能区的尺寸比例规范,布局合理,能很好地满足日常功能需求,整体空间开阔,采光充足,居住舒适度好;

楼盘开盘、降价、优惠等信息,将会在第一时间短信通知您!
置业专家将在2小时内与您联系(8点-23点),请保持电话畅通。
请验证手机号验证码完成提交
置业专家将在2小时内与您联系(8点-23点),请保持电话畅通。
如当前手机号遗失,请联系0755-33526610进行人工修改
如当前手机号遗失,请联系0755-33526610进行人工修改
此楼盘如有优惠/变价通知,我们会及时通知您!
138****8965已经申请
137****8955已经申请
157****4365已经申请
183****8115已经申请
187****5968已经申请
159****8233已经申请