融创天朗西安宸院位于西沣路与西部大道十字交汇处向东200米路南,属于西安泛高新区,西沣路可直达锦业路都会商务区,西部大道链接长安、航天城等多个区域。 融创西安宸院项目分两期开发,首期共计26栋楼,由10栋高层、14栋洋房、1栋幼儿园及商业组成,项目整体打造80逾万平米低密洋房高层社区,传承融创高端纯粹血统,缔造纯正法式精品居住社区。
基本信息
规划信息
配套信息
销售信息
优选顾问推荐
各个空间户型方正,后期空间利用率高;全明通透户型,居住舒适度较高,整个空间采光充足,利于后期居住;整个户型空间布局合理,做到了干湿分离、动静分离,方便后期生活;卧室厨卫等各个功能区的面积大小都比较合理,居住体验便利,整体舒适度高;
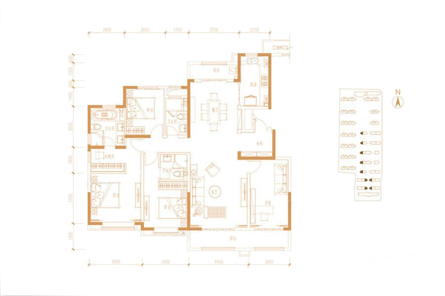
整体户型方正,活动区域开阔,居住舒适度高;整个空间全明通透,采光良好,同时利于居住空间通风;卧室进卫生间需要穿过餐厅或客厅;各个功能区的尺寸比例规范,布局合理,能很好地满足日常功能需求,整体空间开阔,采光充足,居住舒适度好;公摊高于15%且低于25%,符合住宅公摊正常范围。
各个空间户型方正,后期空间利用率高;整个空间全明通透,采光良好,同时利于居住空间通风;居室布局合理,通风良好,动静分离,兼顾到了卧室和卫生间的私密性;客厅、卧室、卫生间和厨房等主要功能间的尺寸以及比例适中,有利于采光和通风,居住起来舒适、方便;

楼盘开盘、降价、优惠等信息,将会在第一时间短信通知您!
置业专家将在2小时内与您联系(8点-23点),请保持电话畅通。
请验证手机号验证码完成提交
置业专家将在2小时内与您联系(8点-23点),请保持电话畅通。
如当前手机号遗失,请联系0755-33526610进行人工修改
如当前手机号遗失,请联系0755-33526610进行人工修改
此楼盘如有优惠/变价通知,我们会及时通知您!
138****8965已经申请
137****8955已经申请
157****4365已经申请
183****8115已经申请
187****5968已经申请
159****8233已经申请