名京九合院项目地处未央大道龙首之上,西邻文景路南端,北靠二环,是连接老北城与新北城(经开区)的地带。该项目是地铁2号线,53条公交线必经之处,交通网络覆盖整个西安市,四通八达。 名京九合院总占地约300余亩,是老北城二环内百万平米体量大盘,自身配套成熟。 名京九合院是北城未来人居之所。两梯四户、纯板式、纯南向住宅的设计,体现人们对住宅品质的优质追求。项目与唐大明宫遗址公园、汉城遗址公园、文景公园、城市运动公园四大主题公园为邻。
基本信息
规划信息
配套信息
销售信息
优选顾问推荐
各个空间户型方正,方便室内家具布置;全明户型,各部分空间均有窗,可保证整体空间采光和通风,居住舒适度好;卧室进卫生间需要穿过餐厅或客厅;各个功能区的尺寸比例规范,布局合理,能很好地满足日常功能需求,整体空间开阔,采光充足,居住舒适度好;
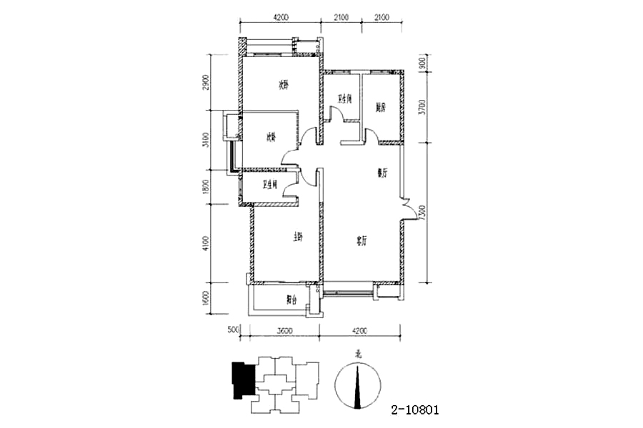
各个空间户型方正,方便室内家具布置;户型不是南北通透,后期装修时可以考虑加装纱门改善通风;卧室进卫生间需要穿过餐厅或客厅;卧室厨卫等各个功能区的面积大小都比较合理,居住体验便利,整体舒适度高;公摊高于15%且低于25%,符合住宅公摊正常范围。
整体户型方正,活动区域开阔,居住舒适度高;户型不是南北通透,后期装修时可以考虑加装纱门改善通风;卫生间门朝向主要活动区域;卧室厨卫等各个功能区的面积大小都比较合理,居住体验便利,整体舒适度高;公摊高于15%且低于25%,符合住宅公摊正常范围。
整体户型方正,活动区域开阔,居住舒适度高;全明通透户型,居住舒适度较高,整个空间采光充足,利于后期居住;卫生间门朝向主要活动区域;卧室厨卫等各个功能区的面积大小都比较合理,居住体验便利,整体舒适度高;公摊高于15%且低于25%,符合住宅公摊正常范围。

楼盘开盘、降价、优惠等信息,将会在第一时间短信通知您!
置业专家将在2小时内与您联系(8点-23点),请保持电话畅通。
请验证手机号验证码完成提交
置业专家将在2小时内与您联系(8点-23点),请保持电话畅通。
如当前手机号遗失,请联系0755-33526610进行人工修改
如当前手机号遗失,请联系0755-33526610进行人工修改
此楼盘如有优惠/变价通知,我们会及时通知您!
138****8965已经申请
137****8955已经申请
157****4365已经申请
183****8115已经申请
187****5968已经申请
159****8233已经申请