林河春天3期林河世家占地73亩,总建面25万方,规划7栋楼,现推出6号楼46-50㎡精品公寓、2号楼高层,容积率3.5;绿化率35%。
基本信息
规划信息
配套信息
销售信息
优选顾问推荐
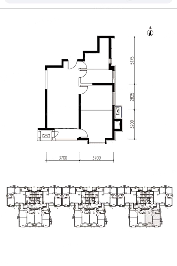
整体户型方正,活动区域开阔,居住舒适度高;整个空间全明通透,采光良好,同时利于居住空间通风;整个户型空间布局合理,做到了干湿分离、动静分离,方便后期生活;次卧的面宽进深比不在标准范围内,要适当缩放家具比例,让空间看起来更开阔;公摊高于15%且低于25%,符合住宅公摊正常范围。
各个空间户型方正,方便室内家具布置;全明户型,各部分空间均有窗,可保证整体空间采光和通风,居住舒适度好;整体空间布局合理,能够保证动静分离和居室通风,方便使用;次卧的面宽进深比没达到适用要求,装修时可考虑设计为书房、保姆房等功能房间,提升空间利用率;公摊高于15%且低于25%,符合住宅公摊正常范围。

楼盘开盘、降价、优惠等信息,将会在第一时间短信通知您!
置业专家将在2小时内与您联系(8点-23点),请保持电话畅通。
请验证手机号验证码完成提交
置业专家将在2小时内与您联系(8点-23点),请保持电话畅通。
如当前手机号遗失,请联系0755-33526610进行人工修改
如当前手机号遗失,请联系0755-33526610进行人工修改
此楼盘如有优惠/变价通知,我们会及时通知您!
138****8965已经申请
137****8955已经申请
157****4365已经申请
183****8115已经申请
187****5968已经申请
159****8233已经申请